Строительство в Алматы
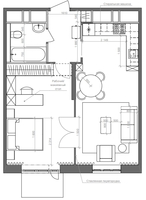
Как сделать квартиру удобной и просторной? Как сделать, чтобы ремонт не стал каторгой? Планировка — первое, с чего стоит начать. Я предложу вам 2-3 варианта, учитывая ваши пожелания и образ жизни. Цена — 20 000 тг (за квартиру до 50 м²). Срок выполнения - 1-2 дня - сможете приступать к ремонту уже через несколько дней!
PS. Подготовьте план с размерами.
Перепланировка рассчитывается отдельно.
Звоните или пишите прямо сейчас!
Действия с объявлением #1748538
Поделитесь с друзьями и знакомыми
Поделитесь объявлением Хороший ремонт начинается с планировки с друзьями, знакомыми, потенциальными клиентами, используйте для этого социальные сети, мессенджеры. Это придаст объявлению популярности и эффект многократно повысится.
Сохраните или сообщите о нарушении
- Зарегистрирован: 02.04.2025
- Активность: 02.04.2025
Советы по безопасности
- Познакомьтесь с продавцом в публичном месте
- Проверьте товар перед покупкой
- Оплачивайте только после того как убедитесь, что товар соответствует описанию и вашим требованиям
- Желательно провести сделку при свидетелях
- Познайомтеся з продавцем в публічному місці
- Перевірте товар перед покупкою
- Сплачуйте лише після того як переконаєтеся, що товар відповідає опису і вашим вимогам
- Бажано провести операцію при свідках
QR-код страницы
Поделитесь QR-кодом в социальных сетях, чатах, мессенджерах чтобы ваши знакомые, потенциальные клиенты открыли ваше объявление на своих смартфонах.
Казахстан
Украина
Узбекистан
Молдавия